Largeur de couloir : normes 2026, dimensions idéales et erreurs à éviter

Table des matières
On se pose tous la question devant une feuille blanche ou en pleine rénovation : faut-il sacrifier une partie du salon pour élargir le couloir, ou réduire ce dernier au strict minimum ? La hantise du "couloir tunnel" est bien réelle, et croyez-moi, elle est justifiée. Un espace mal dimensionné n'est pas juste pénible au quotidien ; il peut transformer un simple déménagement en enfer et dévaloriser votre bien à la revente.
Oubliez les standards suisses ou canadiens qui polluent les résultats de recherche. Ici, nous parlons de votre réalité en France, coincée entre un Code de la construction rigide et votre envie de ne pas vivre dans une boîte à chaussures.
"La largeur standard d'un couloir en France est de 90 cm pour assurer un passage fonctionnel. Cependant, pour un confort optimal et le respect des normes d'accessibilité (PMR), une largeur de 120 cm est recommandée. Cela permet le croisement de deux personnes et le passage aisé de meubles volumineux.
Quelle est la largeur standard d'un couloir ? (Le verdict rapide)
Votre artisan s'impatiente ou l'architecte attend votre validation ? Voici les chiffres bruts pour trancher maintenant. Gardez en tête que ces dimensions s'entendent toujours « mur à mur » (fini), c'est-à-dire une fois que vous avez posé le revêtement mural.
-
Le minimum vital de 90 cm correspond au standard de la majorité des appartements français d'avant 2000. Ça passe pour un adulte qui marche normalement, mais c'est strict. C'est du pur fonctionnel, sans fioritures.
-
Le confort standard entre 100 et 110 cm change radicalement la perception de l'espace dès qu'on franchit le mètre. Vos épaules ne frôlent plus les murs. C'est le compromis que je recommande souvent pour les zones de nuit et les chambres.
-
Le luxe et l'accessibilité à 120 cm et plus transforment votre couloir : ce n'est plus un tube de transport, mais une vraie zone de circulation. Deux personnes se croisent sans devoir se mettre de profil. C'est le standard requis pour une maison moderne qui se respecte.
Sur vos plans, méfiez-vous comme de la peste des cotes « brutes ». Un couloir dessiné à 90 cm sur le papier fera en réalité 86 ou 87 cm une fois le placo, l'enduit et la peinture posés. Prévoyez toujours une marge de sécurité.
Les normes officielles à respecter en France (PMR et code construction)
Contrairement aux idées reçues, la France ne rigole pas avec la réglementation, surtout avec l'arrêté du 24 décembre 2015 relatif à l'accessibilité (PMR - Personnes à Mobilité Réduite). Que vous construisiez pour louer ou simplement pour anticiper vos vieux jours, ignorer ces normes est un pari que je vous déconseille de prendre.
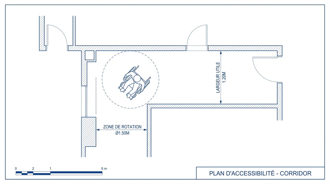
La règle d'or de l'accessibilité fixe la largeur idéale à 1,20 m.
Mais soyons honnêtes, la législation française sait être pragmatique. Une largeur de 90 cm reste tolérée, mais à une condition non négociable : il faut des espaces de manœuvre. Concrètement :
-
Le passage utile doit faire au moins 90 cm.
-
Des aires de rotation sont obligatoires aux extrémités du couloir et à chaque intersection. Ces zones doivent permettre à un fauteuil roulant de faire un demi-tour complet, ce qui demande un diamètre de 1,50 m.
Si vous avez une contrainte structurelle, comme une colonne porteuse qui crée un rétrécissement, la largeur peut descendre exceptionnellement à 80 cm. Mais attention, cela ne vaut que sur une très courte distance (moins de 2 mètres).

Normes d'accessibilité et largeur de passage PMR
Pourquoi 90 cm ne suffit plus : l'argument du confort et du déménagement
La loi autorise 90 cm, c'est un fait. Mais pourquoi devriez-vous viser plus large ? Parce que la vie ne consiste pas à marcher au pas, les bras collés le long du corps.
D'abord, il y a l'effet psychologique. Un couloir long et étroit de 90 cm, surtout avec une belle hauteur sous plafond, crée immédiatement cette sensation d'oppression désagréable, le fameux « effet tunnel ».
Ensuite, parlons anatomie. Une largeur d'épaules moyenne oscille entre 45 et 55 cm. Faites le calcul : dans un couloir de 90 cm, deux adultes ne peuvent mathématiquement pas se croiser sans se toucher ou sans que l'un ne soit obligé de s'effacer dans une porte.
Enfin, projetez-vous au jour de l'emménagement. Le test du « canapé d'angle » ou du « matelas Queen Size » est impitoyable.
-
Pour faire pivoter un meuble long de 2 mètres dans un angle à 90°, la largeur du couloir décide de tout.
-
Avec 90 cm, c'est souvent échec et mat : impossible sans démonter le meuble ou rayer vos peintures neuves.
-
Avec 10 petits centimètres de plus (100 cm), vous gagnez un angle de braquage qui sauve la mise.

Confort de circulation : l'avantage d'un couloir large
Tableau comparatif : largeur minimale vs largeur recommandée
Voici de quoi arbitrer vos choix pièce par pièce pour ne pas gaspiller de surface inutilement.
| Type de passage | Minimum Légal (France) | Recommandation Ergonomique | Pourquoi ? |
|---|---|---|---|
| Couloir principal | 90 cm | 120 cm | Lieu de trafic intense. On y croise du monde, on passe de l'entrée au séjour. Il doit respirer. |
| Couloir de nuit | 90 cm | 100 - 110 cm | Passage moins fréquent, mais il faut pouvoir circuler avec un panier à linge ou un enfant dans les bras sans cogner les murs. |
| Entrée / Hall | 90 cm | 140 cm+ | Une entrée n'est pas un couloir. On doit pouvoir s'y arrêter, enfiler un manteau et accueillir des gens sans bloquer le passage. |
| Dégagement court | 90 cm | 90 cm | Pour desservir un WC ou un cellier sur moins d'un mètre, la largeur standard suffit largement. |
5 astuces pour optimiser un couloir existant (sans casser les murs)
Vous rénovez et vous êtes coincé avec un couloir de 90 cm, voire moins ? Pas de panique. Si on ne peut pas pousser les murs, on peut tricher visuellement et améliorer l'ergonomie.
- Misez sur un éclairage stratégique. Bannissez le plafonnier unique qui crée des zones d'ombre tristes. Privilégiez des spots encastrés ou des appliques murales qui éclairent le plafond. Cela « repousse » les murs visuellement vers le haut et les côtés.
- Jouez avec les couleurs. Peignez les murs latéraux en clair (blanc, beige, gris perle) pour élargir, et le mur du fond dans une teinte foncée ou avec un papier peint audacieux. Cette technique « casse » la longueur et réduit l'effet de boyau.
- Utilisez des miroirs pour la profondeur. Un grand miroir sur l'un des murs latéraux double visuellement la largeur de l'espace. C'est une astuce vieille comme le monde, mais elle reste redoutablement efficace.
- Installez des portes coulissantes à galandage. Une porte battante qui s'ouvre dans un couloir étroit est une aberration architecturale. Remplacez-la par une porte coulissante. Vous récupérez immédiatement tout l'espace de débattement (environ 1 m² au sol).
- Zéro meuble au sol. Dans 90 cm, même une console de 20 cm de profondeur est de trop. Si vous devez ranger, utilisez des étagères en hauteur (au-dessus des portes) ou des niches encastrées entre les montants du placo.
Les erreurs fatales à ne pas commettre sur votre plan
Lors de la conception, certaines erreurs semblent anodines sur le papier mais deviennent un cauchemar une fois la maison livrée.
-
Vous oubliez l'épaisseur des plinthes. C'est le piège classique. Une plinthe standard fait environ 1,5 cm d'épaisseur. Avec deux plinthes, vous perdez 3 cm. Un couloir prévu à 90 cm brut devient un passage de 87 cm au sol. C'est rageant.
-
Les portes s'ouvrent vers l'extérieur. Sauf raison de sécurité incendie spécifique (rare en maison individuelle), ne faites jamais ouvrir une porte de chambre ou de salle de bain vers le couloir. C'est dangereux - vous risquez de heurter un passant - et cela bloque la circulation.
-
L'absence de « cassure » visuelle. Un couloir rectiligne de 6 ou 8 mètres est anxiogène. Si vous ne pouvez pas l'éviter, créez du rythme avec des cadres, des changements de sol ou des arches.
-
Vous négligez l'impact sur la revente. Un couloir sombre et étriqué donne immédiatement une impression de "vieux" et de manque d'espace, même si les chambres sont immenses. C'est un repoussoir puissant. L'impression générale est cruciale pour déclencher une offre. Si vous cherchez à valoriser votre intérieur, jetez un œil à notre meilleur truc de grand-mère pour vendre une maison qui, tout comme l'aménagement de votre couloir, joue sur la psychologie de l'acheteur pour provoquer le coup de cœur.
Alors, quelle dimension retenir pour votre projet ?
Le choix final dépendra toujours de votre budget et de la place disponible, mais voici ma règle personnelle :
Si vous avez la place, visez 1,20 m sans hésiter. C'est un investissement dans votre confort quotidien et une garantie d'accessibilité future qui valorise votre patrimoine.
Si chaque centimètre compte, descendez à 100 cm. C'est le compromis intelligent qui sauve les meubles (littéralement).
Si vous êtes contraint au minimum légal de 90 cm, soignez impérativement l'éclairage et la décoration pour éviter la sensation d'étouffement. Mais ne descendez jamais en dessous, sous peine de rendre votre logement invivable.
Choisir les bonnes dimensions pour vos zones de passage impacte durablement la qualité de vie au sein de votre foyer. Une largeur couloir d'au moins 90 cm reste la recommandation la plus sûre pour allier confort actuel et accessibilité future, respectant les standards d'une habitation moderne. Que vous disposiez d'un espace exigu à optimiser par la lumière ou d'un large dégagement transformable en bibliothèque, chaque centimètre compte. Ne subissez plus ces surfaces comme des espaces perdus, mais valorisez-les intelligemment lors de vos travaux. Avant de figer votre plan, vérifiez toujours la faisabilité technique de vos cloisons pour garantir une fluidité parfaite au quotidien.
❓Foire Aux Questions (FAQ)
1. Est-ce que la largeur du couloir inclut les plinthes ?
Non, la « largeur de passage utile » se mesure toujours entre les obstacles les plus saillants. Si vous avez des plinthes, la largeur réelle est la distance entre elles.
2. Quelle est la largeur minimale pour un fauteuil roulant ?
Pour avancer en ligne droite, 90 cm suffisent strictement. Cependant, pour manœuvrer confortablement sans s'écorcher les mains sur les murs, 120 cm sont vivement recommandés.
3. Peut-on faire un couloir de 80 cm ?
Légalement, c'est possible en rénovation privée (si vous n'avez aucune obligation PMR comme dans le locatif ou le neuf). Techniquement, je vous le déconseille fortement : c'est inconfortable, oppressant, et cela compliquera énormément la revente du bien.
4. Quelle largeur prévoir pour un couloir avec placards intégrés ?
Vous devez additionner la profondeur du placard et la zone de circulation. Comptez 60 cm pour un dressing standard + 90 à 100 cm de passage libre. Il faut donc prévoir une largeur mur à mur de 150 à 160 cm.
Articles similaires

Vivre dans une surface réduite oblige souvent à des compromis, mais réinventer son foyer permet de transformer son intérieur pour qu'il nous ressemble sans sacrifier la fonctionnalité. L'entretien du linge ne devrait pas envahir votre espace de vie. Transformer une niche inutilisée ou une penderie en une buanderie dans placard est la solution de rénovation idéale pour optimiser chaque mètre carré. Ce projet permet non seulement de libérer de la place dans la salle de bains ou la cuisine, mais aussi de camoufler élégamment des appareils souvent inesthétiques et bruyants. De la gestion de la plomberie à l'agencement malin des rangements, nous vous guidons étape par étape pour concevoir un espace technique invisible, sécurisé et parfaitement fonctionnel.
14 janv. 2026

Vous rêvez d'un intérieur à la fois intemporel et résolument moderne ? Réinventer son foyer est une étape essentielle pour s'offrir un quotidien qui nous ressemble. Le style monochrome offre une élégance rare, mais il effraie souvent par peur de créer une atmosphère froide ou impersonnelle. Pourtant, bien dosé, ce choix esthétique transforme une pièce banale en un espace sophistiqué et apaisant. Cet article vous guide pour maîtriser les nuances, les textures et la lumière afin de réussir l'aménagement de votre salon noir et blanc et gris. Nous explorerons ensemble comment marier ces teintes avec justesse pour garantir un résultat chaleureux, loin des clichés d'un showroom aseptisé, tout en valorisant les volumes de votre habitat.
6 févr. 2026

Vous avez 3 ou 4 m² et vous voulez du moderne. C'est le dilemme classique du propriétaire urbain : transformer un placard à balais en spa sans inonder le couloir à chaque douche. La peur des gros travaux et le manque de mètres carrés tuent souvent la créativité dans l'œuf. C'est dommage, car avec un peu de rigueur, c'est totalement faisable.
4 févr. 2026